Spartherm Linear M700, Kassett, Peisinnsats

Spartherm Linear Kassett innsats - Moderne og funksjonell kassettløsning som kommer i 5 størrelser: XS, S, M, L og XL En kassettløsning egner seg godt til å sette inn i åpen grue for å få et effektivt og rentbrennende.

PrisNOK46 756,00 inkl. mva.

Produktinfo

Spartherm Kassett M700 - Linear
 
Moderne og funksjonell kassettløsning som kommer i 5 størrelser: XS, S, M, L og XL
En kassettløsning egner seg godt til å sette inn i åpen grue for å få et effektivt og rentbrennende ildsted.

   

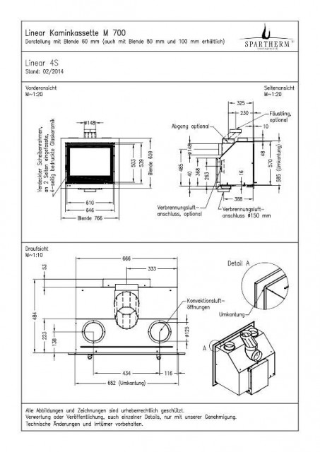
 TEKNISKE DATA
Nominell effekt: 6,5 kW
Driftsområde: 4,5-7,8 kW
Virkningsgrad: 80%
Vekt: 98 kg
Røykrør: Ø150 mm
Røykuttak: Topp/bak
Dørtype: Venstrehengslet
 
DIMENSJONER
Dørramme (B): 810 mm
Dørramme (H):  543 mm
Total (H): 579 mm
Total (B): 544 mm
Total (L): 846 mm

 

VENTILER 
Innluft:  min. 312cm²
Utluft:  min. 468cm²

 Ventiler  i ramme beregnes med 40 ganger med maks kw på inn/under ventil(er) og 60 ganger med maks kW for ut/over ventil(er).

 
- Konveksjonsluft: Det skal være inn /utluftning for konveksjonsluft etter reglene, gjeldene for det valgte Spartherm produkt - Se bakside for mål.
- Det skal være en avstand på min 500mm, fra øvre ventilrist til brennbart materiell.
- Gulvet: Det er krav til gulvplate foran og eventuelt rundt peisen dersom den kan åpnes på flere sider. Her gjelder nasjonale lover og regler. Norske krav til    gulvplate er minst 30 cm dyp og minimum peisinnsatsens bredde. Gulvplaten foran peis skal bestå av ”ikke brennbart materiell” som fks skifer/fliser/glass osv.
- Strålebeskyttelse glass: Avstand til brennbare materialer/møbler er min. 80 cm. Ved bruk av ekstra skjermplate for stråleredusering kan dette reduseres til 40 cm.
 
Spartherm er en av Tysklands største produsenter av ildsteder og er tysk kvalitet på sitt beste.